外観 外はこのようになっています
- 物件名
- 「防音マンション」ラシクラス東高円寺
- 価格
- 22.7万円
- 管理/共益費
- 8,000円
- 築年月
- 2023年8月(築2年)
- 総戸数
- 11戸
- 設備条件
-
- 敷地内ごみ置き場
- CATV
- オートロック
- 宅配ボックス
- 設備(その他)
-
-
-
- 駐車場/月額
- 無/-
- 用途地域
- -
- 戸数
- 11戸 / -
- 取引態様
- 仲介
- 現況
- 空家
- 備考
- 防音性能だけでなく、その日から使えるBluetoothスピーカーも標準装備されていますので圧倒的な迫力で映画や音楽鑑賞も楽しめます。
熱交換換気システム(ロスナイ換気システム)
防音性・空気清浄性・省エネ性に優れた換気システムにも特殊な防音加工を施していますので、「防音室にずっといたら暑い」や「空気が足りない」なんてこともなく快適にお過ごしいただけます。
※グランドピアノも演奏できる防音性はありますが、マンションにより物理的に搬入ができない、またはサイズに制限がある場合もございます。詳しくはお問い合わせください。
※ご利用いただけない楽器
コントラバス 打楽器全般(電子ドラム含む)
※その他マンションにより制限があるものもございますので詳しくはお問い合わせください。
-
ドラッグストア
くすりのイソップ
97m(2分)
-
スーパー
オオゼキ 東高円寺店
102m(2分)
-
スーパー
まいばすけっと 高円寺南1丁目店
115m(2分)
-
コンビニエンスストア
ファミリーマート 東高円寺駅前店
177m(3分)
-
コンビニエンスストア
セブンイレブン 杉並和田3丁目店
197m(3分)
-
スーパー
mini(ミニ)ピアゴ 東高円寺駅前店
236m(3分)
-
郵便局
東高円寺郵便局
397m(5分)
基本情報
詳細情報
「防音マンション」ラシクラス東高円寺のコメント(おすすめポイント)
防音性能はこんな感じです。
例えば100デシベル(ガード下で聞こえる電車通過音)が、、、
・壁を隔てた同じ部屋(居室とキッチン等)で家庭用クーラーの室外機音レベルに
・お隣のお部屋(防音室)で木の葉の触れ合う音レベルに
・防音サッシを隔てた外で図書館レベルにそれぞれ抑えることが出来ます。
こだわりの防音施工
防音床・防音壁・防音天井
居室の床・壁・天井には、ラシクラス独自の防音施工を施しています。
コンクリートの厚み180mmに加え、防音工事部分の厚みは【床180mm・壁140mm・天井200mm】に及びます。
2重防音扉
密封性・遮音性に優れた防音仕様の扉を、さらに二枚重ねにしています。
防音の窓サッシ
音漏れが一番心配される開口部も、防音対策は万全です。
外部サッシ(防音合わせガラス+網入りガラス)と、内部サッシ(単板ガラス)の組合せで、音漏れをしっかり防ぎます。また、音波を乱反射させ音のエネルギーを小さくすることを目的に 内部サッシを外窓サッシに対し斜めに取り付けるなど、ちょっとした工夫で、防音効果をさらに高めています。
音響効果
防音マンションは、「音漏れを防げば防ぐほど優秀」というわけではありません。
室内に響く余分な反響音をカットし、クリアな響きを実現してこそ、優れた防音マンションと言えます。 ラシクラスでは物件の条件に合わせて、天井・または壁に吸音効果をもたらす仕様を採用。 求める音に集中できる環境を提供します24時間365日楽器演奏可能な防音マンションです。構造はもちろん、配線一つ一つにこだわった施工技術によるその防音性能は圧倒的です。楽器演奏される方だけでなく、DTMやYouTube配信をされる方、静かな環境でテレワークを含むお仕事に集中されたい方は是非一度体感してみてください。
防音性能はこんな感じです。
例えば100デシベル(ガード下で聞こえる電車通過音)が、、、
・壁を隔てた同じ部屋(居室とキッチン等)で家庭用クーラーの室外機音レベルに
・お隣のお部屋(防音室)で木の葉の触れ合う音レベルに
・防音サッシを隔てた外で図書館レベルにそれぞれ抑えることが出来ます。
こだわりの防音施工
防音床・防音壁・防音天井
居室の床・壁・天井には、ラシクラス独自の防音施工を施しています。
コンクリートの厚み180mmに加え、防音工事部分の厚みは【床180mm・壁140mm・天井200mm】に及びます。
2重防音扉
密封性・遮音性に優れた防音仕様の扉を、さらに二枚重ねにしています。
防音の窓サッシ
音漏れが一番心配される開口部も、防音対策は万全です。
外部サッシ(防音合わせガラス+網入りガラス)と、内部サッシ(単板ガラス)の組合せで、音漏れをしっかり防ぎます。また、音波を乱反射させ音のエネルギーを小さくすることを目的に 内部サッシを外窓サッシに対し斜めに取り付けるなど、ちょっとした工夫で、防音効果をさらに高めています。
音響効果
防音マンションは、「音漏れを防げば防ぐほど優秀」というわけではありません。
室内に響く余分な反響音をカットし、クリアな響きを実現してこそ、優れた防音マンションと言えます。 ラシクラスでは物件の条件に合わせて、天井・または壁に吸音効果をもたらす仕様を採用。 求める音に集中できる環境を提供します
「防音マンション」ラシクラス東高円寺で募集中の物件
近隣の物件
「防音マンション」ラシクラス東高円寺
22.7万円
8,000円
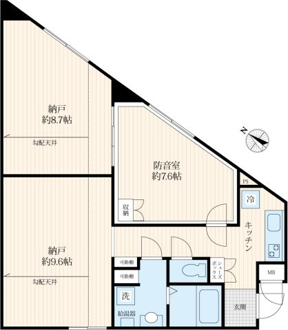
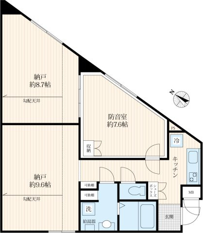
1K+2S(納戸)(58.81㎡)



