NEW

「防音マンション」ラシクラス東高円寺 501

22.7万円

管理 / 共益費 8,000円

東京都杉並区高円寺南1丁目

丸ノ内線「東高円寺」駅徒歩2分

丸ノ内線「新高円寺」駅徒歩12分

総武線「中野」駅徒歩14分

賃料
22.7万円
敷金(保証金)
0ヶ月(-)
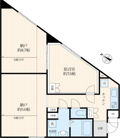
間取り
1K+2S(納戸)
向き
所在地
東京都杉並区高円寺南1丁目
管理 / 共益費
8,000円
礼金
1ヶ月
専有面積
58.81㎡
築年月
2023年8月(築2年)
交通

丸ノ内線東高円寺」駅 徒歩2分

丸ノ内線新高円寺」駅 徒歩12分

総武線中野」駅 徒歩14分

物件の特徴

  • バストイレ別

  • 室内洗濯機置場

  • 独立洗面台

  • 浴室乾燥機

  • オートロック

セールスポイント

演奏できる楽器の種類がとにかく多いです!
ただの楽器相談のマンションではありません。居室は防音床、防音壁、防音天井となっており、コンクリートの厚みは180㎜と、まさに楽器を演奏するためにつくられた24時間楽器演奏可能のマンションなんです。

ポイント

担当者のコメント

柴 犬

独自の防音施工を施しており、その遮音性はマイナス80dB!防音室で95db(窓を開けた状態の地下鉄の車内位)の音を出した場合、隣の部屋で聞こえる音はおよそ15dB(木の葉のささやき位)まで抑えられます。
楽器演奏される方だけでなく、DTMやYouTube配信をされる方、静かな環境でテレワークを含むお仕事に集中されたい方は是非一度体感してみてください。

防音性能
防音床・防音壁・防音天井
居室の床・壁・天井には、ラシクラス独自の防音施工を施しています。
コンクリートの厚み180mmに加え、防音工事部分の厚みは【床180mm・壁140mm・天井200mm】に及びます。

2重防音扉
密封性・遮音性に優れた防音仕様の扉を、さらに二枚重ねにしています。

防音の窓サッシ
音漏れが一番心配される開口部も、防音対策は万全です。
外部サッシ(防音合わせガラス+網入りガラス)と、内部サッシ(単板ガラス)の組合せで、音漏れをしっかり防ぎます。また、音波を乱反射させ音のエネルギーを小さくすることを目的に 内部サッシを外窓サッシに対し斜めに取り付けるなど、ちょっとした工夫で、防音効果をさらに高めています。

音響効果
防音マンションは、「音漏れを防げば防ぐほど優秀」というわけではありません。
室内に響く余分な反響音をカットし、クリアな響きを実現してこそ、優れた防音マンションと言えます。 ラシクラスでは物件の条件に合わせて、天井・または壁に吸音効果をもたらす仕様を採用。 求める音に集中できる環境を提供します

防音給気ダクト・防音排気ダクト
快適な空気環境の維持と、優れた防音性能を両立させるためには、給排気ダクトに十分な防音仕様を施すことが欠かせません。ラシクラスは快適な住環境・音環境を叶えます。

基本情報

保証金
-
敷引 / 償却
- / -
敷金積み増し
-
間取り / 詳細
1K+2S(納戸)
洋室 7.6帖/S 8.7帖/S 9.6帖
向き
専有面積
58.81㎡
バルコニー
(テラス)面積
-
所在階 / 階建て
4階 / 4階建 地下1階
建物構造
鉄筋コンクリート
築年月
2023年8月(築2年)
種別
賃貸マンション
保険会社 / 料金
有  17,000円  / 2年
保証会社 / 料金
必加入 / その他
初回賃料合計の50%
駐車場 / 月額
無 / -
現況
空家
入居可能時期
即時
その他条件
24時間入居サポート:770円(月額)

設備条件

設備条件
  • 楽器相談 / 保証人不要 / 事務所可 / 2人入居可 / 高齢者相談 / 眺望良好 / 学生歓迎 / 法人可 / SOHO向け / 外国人可 / 24時間利用可能 / 室内洗濯機置場 / フローリング / プロパンガス / 公営水道 / 公共下水 / 二重サッシ / 24時間換気システム / 電気有 / 照明器具付き / 敷地内ごみ置き場 / IHクッキングヒーター / コンロ2口以上 / システムキッチン / バス・トイレ別 / 浴室乾燥機 / 温水洗浄便座 / 洗面台 / シャワー / 独立洗面台 / ユニットバス / 浴槽 / エアコン / シューズボックス / CS / BS / CATV / オートロック / 宅配ボックス / 複層ガラス / ディンプルキー / 角部屋

その他

契約期間
2年
賃貸区分
一般
更新料
1ヶ月
更新事務手数料
-
総戸数
11戸
特優賃
-
取引態様
仲介
物件番号
77006480
管理コード
-
情報更新日
2026年04月22日
次回更新予定日
2026年05月06日
取扱会社
  • 万事屋不動産本舗
  • 東京都中央区新川1丁目9-12 CREAL茅場町 1階
  • TEL:03-6275-2823
  • 東京都知事 (2) 第105849号
  • (公社)全日本不動産協会
    (公社)不動産保証協会
    (公社)首都圏不動産公正取引協議会
    (公社)東日本不動産流通機構
備考
8:00~20:00までは115デシベルまで・20:00~23:00までは110デシベルまで・23:00~8:00までは105デシベルまでとなっています。
また、防音といっても振動や重低音までは防ぎきれませんので、ドラム(電子ドラム)・シンバル・和太鼓の演奏はできません。

周辺施設

  • くすりのイソップの画像

    ドラッグストア

    くすりのイソップ

    97m(2分)

  • オオゼキ 東高円寺店の画像

    スーパー

    オオゼキ 東高円寺店

    102m(2分)

  • まいばすけっと 高円寺南1丁目店の画像

    スーパー

    まいばすけっと 高円寺南1丁目店

    115m(2分)

  • ファミリーマート 東高円寺駅前店の画像

    コンビニエンスストア

    ファミリーマート 東高円寺駅前店

    177m(3分)

  • セブンイレブン 杉並和田3丁目店の画像

    コンビニエンスストア

    セブンイレブン 杉並和田3丁目店

    197m(3分)

  • mini(ミニ)ピアゴ 東高円寺駅前店の画像

    スーパー

    mini(ミニ)ピアゴ 東高円寺駅前店

    236m(3分)

  • 東高円寺郵便局の画像

    郵便局

    東高円寺郵便局

    397m(5分)

近隣の物件

  1. 「防音マンション」VORT高井戸西レジデンス

    杉並区高井戸西3丁目

    1DK (30.79㎡)

    14.5万円

よく見られている物件

  1. 「防音マンション」ラシクラス東高円寺

    杉並区高円寺南1丁目

    1K+2S(納戸) (58.81㎡)

    22.7万円

  2. 「防音室」(分譲賃貸)ヴェルドミール柳橋301

    中央区東日本橋2丁目

    1LDK (37.32㎡)

    25万円

  3. 「防音マンション」ラシクラス上板橋

    板橋区上板橋3丁目

    1K+S(納戸) (35.08㎡)

    14.9万円

  4. 「防音マンション」ラシクラス小岩駅前

    江戸川区南小岩8丁目

    1K (25.10㎡)

    11.8万円

「防音マンション」ラシクラス東高円寺

「防音マンション」ラシクラス東高円寺

22.7万円

8,000円

1K+2S(納戸)(58.81㎡)

お気軽にお問い合わせください

無料お問い合わせ

万事屋不動産本舗

03-6275-2823

10:00~19:00

(休:水)